37 rental homes found
Morden
1 bedroom room for rent in Town Centre, SM4 5LB, Morden
Sutton
Spacious and Cosy Double Room for Rent in - SM1 4QX Key F...
Please Quote Reference IB1005 for all enquiries Prime Sut...
Property Reference: 2719767. We are delighted to offer a ...
Carshalton
Spacious Ensuite room for Rent – SM5 1HH Key Features: Re...
En-Suite Double Room – Shaftesbury Road, Carshalton SM5 1...
Receive direct updates of similar homes.
Spacious and Cosy Double Room for Rent in - SM1 4QX Key ...
*FULLY FURNISHED WITH ALL BILLS INCLUDED ROOM TO LET – AV...
Cribs Estates are proud to present this stunning and mode...
Property Reference: 2789866. *Single occupancy only - no ...
Property Reference: 2742864. Spacious king bed in loft r ...
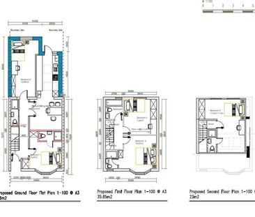
Property Reference: 2794522. Bright and modern 4-bedroom ...
Looking for a spacious room in a house share with all bil...
Spacious & Cosy Double Room For Rent AT CR4 3QN Key Featu...
$28
1 bedroom room for rent in SM1 2RT, Sutton
Property Reference: 2765336. Double Room with En-suite Ba...
Property Reference: 2731332. Brand New All En-Suite Profe...
Property Reference: 2711885. Furnished Ensuite Double Roo...
Property Reference: 2740493. We are proud to offer these ...